Maître d’ouvrage : Caisse d’allocations familiales du Bas-Rhin
Maîtrise d’œuvre : Dietmar Feichtinger Architectes
Surface : 9 650 m2
Lieu : Strasbourg
Livraison : 2017
Coût : 24,8 millions d’euros
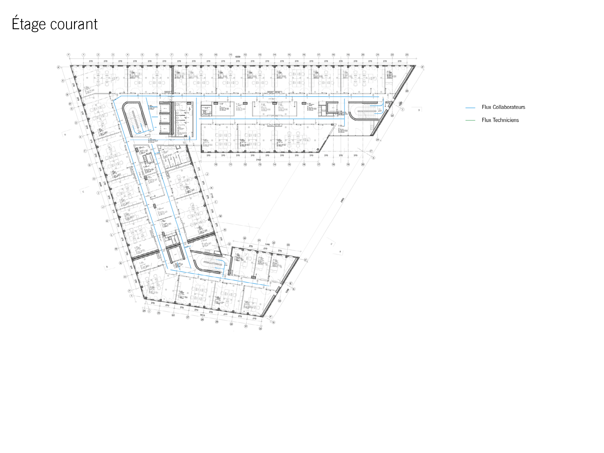
Étude de flux et signalétique d’un immeuble de bureaux de 7 niveaux, avec un hall Accueil Public.
















